A proposal to replace two older houses with a five-storey residential and shopping hub marks a significant change for the heart of Ascot.
Balancing Modern Living and Heritage Style on Racecourse Road, Ascot
Focus on Local Living

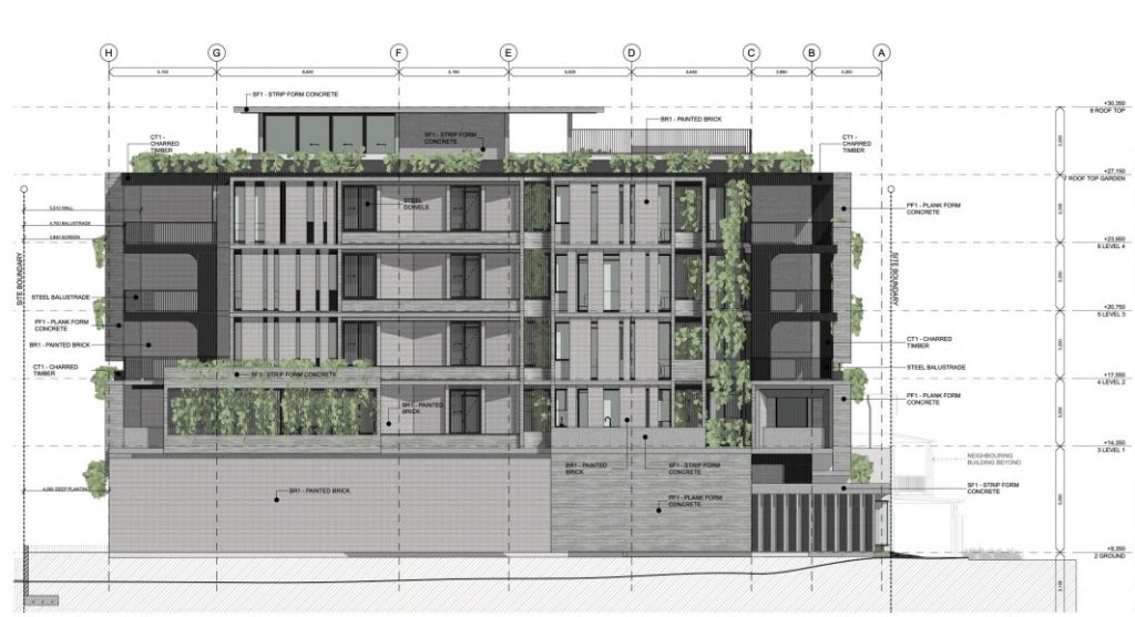
This development would bring 17 new apartments to the neighborhood, offering a mix of two-bedroom and three-bedroom options. To make the most of the Queensland climate, the plans include large private balconies and a shared rooftop area.
This communal space is expected to feature a swimming pool and barbecue facilities, giving residents a place to relax without leaving home. The design also focuses on natural airflow and sunlight to make the units more comfortable and energy-efficient.
Improving the Street Experience

At the ground level, the project seeks to make the sidewalk more inviting for pedestrians. By removing two old driveways and replacing them with a single entry point for the two-level basement carpark, the plan creates a smoother path for people walking by.
Three new shops are also included in the layout, which are intended to add more energy to the local shopping strip and support the existing business character of the area.
Meeting Housing Needs
The planning experts at Atomic Town Planning have noted that the project comes at a time when more homes are needed in well-connected areas. They suggest that while the site is in a busy district, the current layout of the street makes it difficult to coordinate large-scale changes.
Therefore, this specific project is seen as a way to provide more housing and modern facilities that align with what the community needs right now without disrupting future growth in the surrounding area.
Published Date 31-March-2026















